Sisearhitektuur Palazzo Interiors
Köögimööbel Antares
Köögi pukad, kontoriruumide lisatoolid Quinti
Kontorimööbel ProfOffice
Töötoolid Sitland
Klaasseinad Klaasitar OÜ
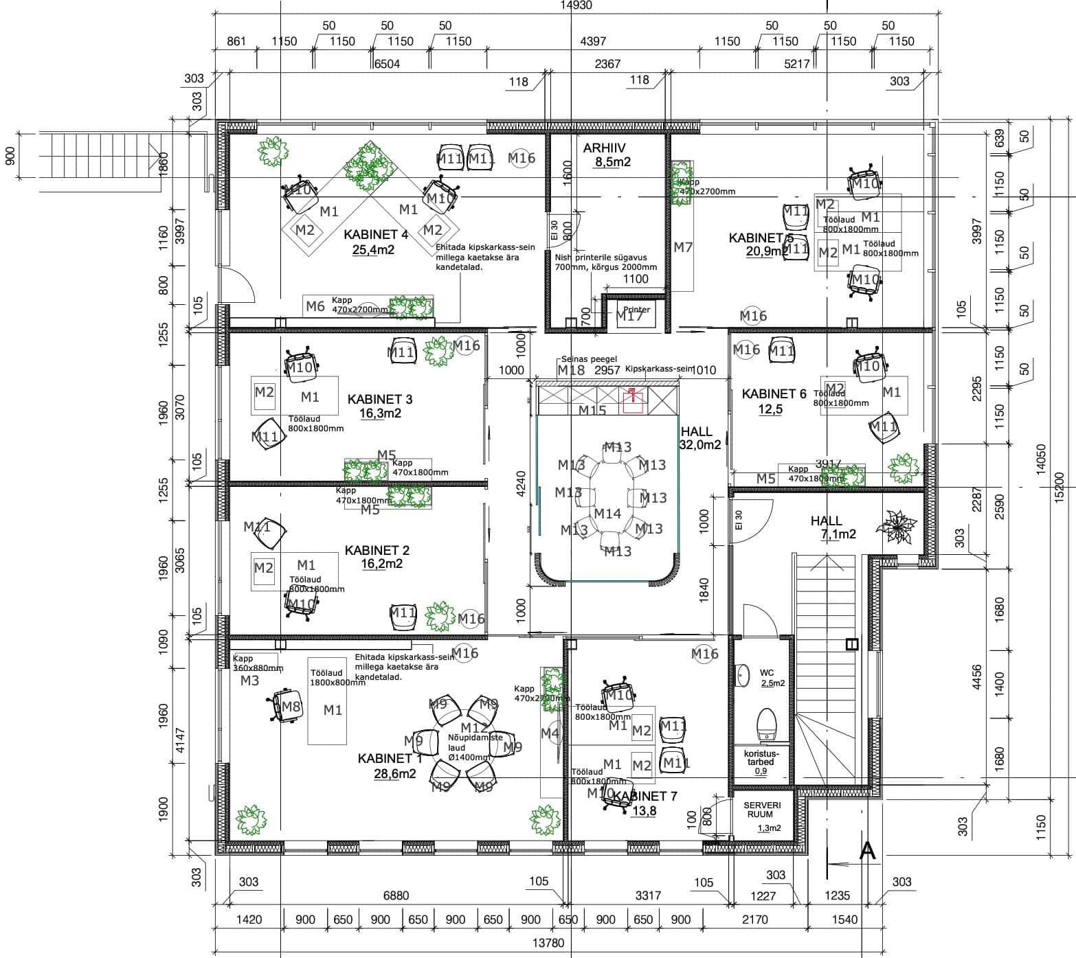
Paarkümmend aastat tagasi ehitatud kontoriruumid vajasid uuendamist, kuid ruumiplaan jäi samaks – keskendusime põhjalikele renoveerimistöödele.
Eelmises kujunduses oli puhkeala avatud ja see ei täitnud oma eesmärki. Seal oli vaid diivan ja kaks tugitooli, mis ei soodustanud ühist olemist ega vestlusi. Lisaks asus köögimööbel teisel pool seina, mis vähendas ruumi praktilisust ja mugavust. Meie lahendus oli luua „ruum ruumis“ efekti klaasseinte ja puitpaneelidega, lisades ühise kõrge laua, mis nüüd on kõigi töötajate lemmik koht, kus kolleegidega asju arutada ja suhelda. Tellija sõnul on see uus lahendus oluliselt elavdanud kollektiivi omavahelist suhtlust. Köögimööbel on pärit Antaresilt ja köögilaua pukid Quinti kollektsioonist Deep.
Juhikabinetti oli samuti vaja uuendust – sinna soovis klient väiksemat koosolekulauda, mida enne ei olnud. Nüüd on seal ümmargune sinine laud, mille inspiratsioon pärineb ühe konkreetse kontorimööbli tootja kollektsioonist. Ka värvilahendused said alguse sama mööblisarja, Prof Office kollektsiooni Dieci, ideedest.
Põrandakattena oli varasemalt kasutatud PVC-d, mis ei summuta heli ja kui seinad on osaliselt klaasisist siis vahel kõne kandus ühest kabinetist teise.Lisaks oli suur probleem et kontoris staatilise elektriga. Kabinettidesse sai valitud plaatvaip, mis oluliselt paremini summutab heli ja vähendas ka staatilise elektri teket. Puhkealasse ja koridori sai valitud parketimustriga LVT kate.
Varasem sisustus oli juba ajast ja arust ning klient soovis uuemat, tänapäevast lahendust, sealhulgas elektriliselt reguleeritava kõrgusega laudu. Nad olid avatud meie poolt pakutud erksamatele ja rõõmsamatele värvilahendustele. Nüüd on kogu mööbel uus ja moodne, valmistatud eritellimusena Palazzo disaini alusel või hangitud meie eksklusiivpartneritelt. Valisime uued valguslahendused, köögiboksi klaasseinad ja akustilise lae. Töötoolid on Sitlandi kollektsioonist Fresh Air ning teised toolid pärinevad Quinti kollektsioonist Deep.
Puhkeruumi lakke sai disainitud valgustite ja stabiliseeritud taimede kompositsioon.













