“Soovisime avatud planeeringut ja võimalust elutoast ning köögist otse suurele terrassile astuda. Töö näis tohutu.”
Nõu ja abi saamiseks pöörduti Palazzo Interiorsi ning sealse sisekujundaja Airita Aimi poole.
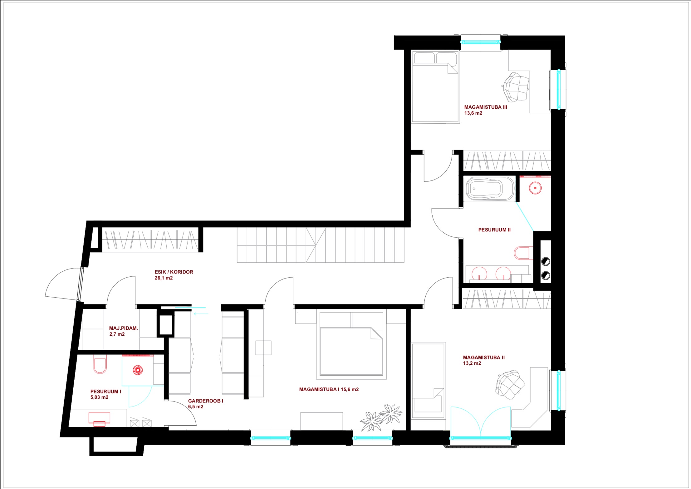
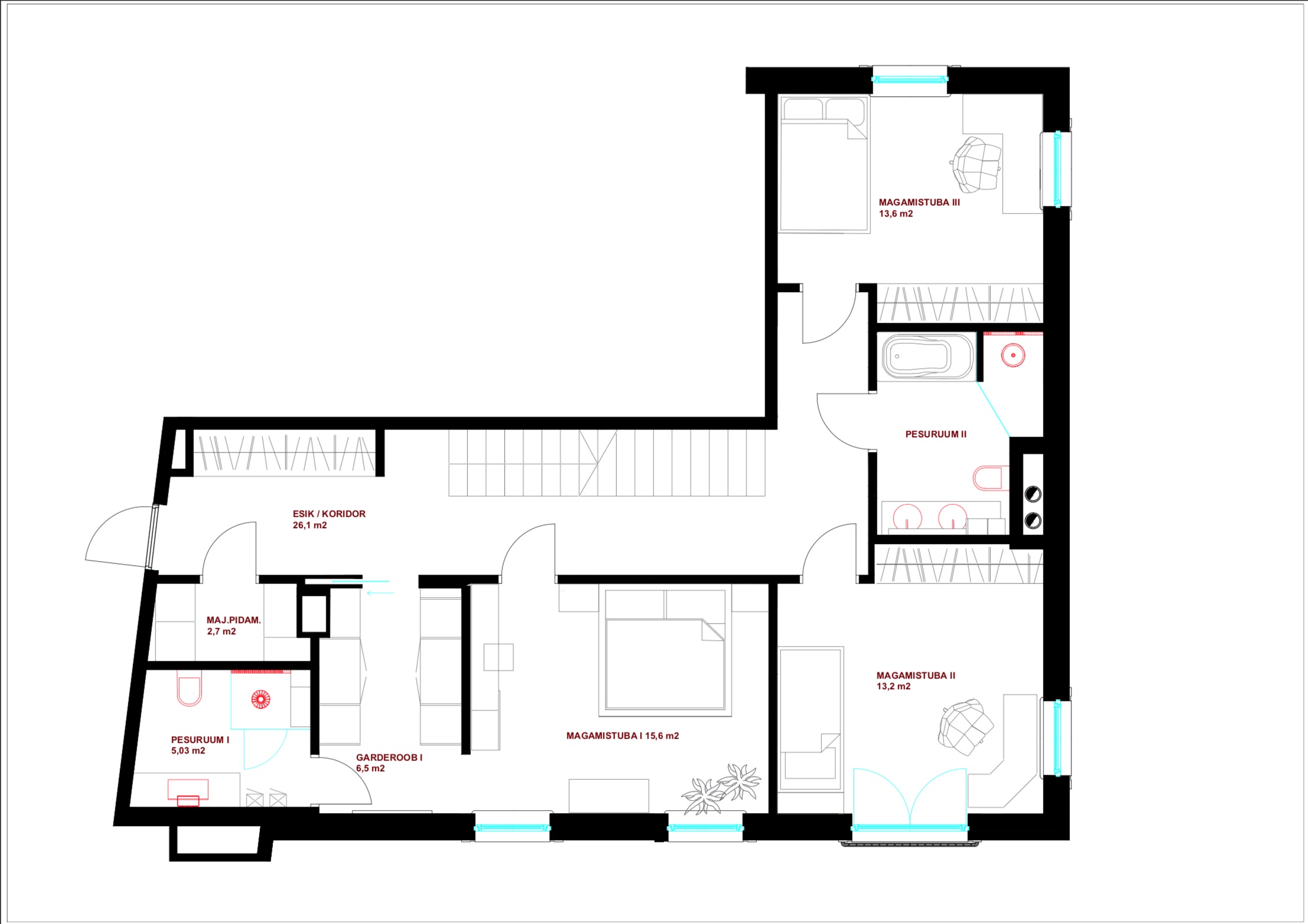
Selle 190-ruutmeetrise, läbi kahe korruse asuva korteri soetati eelkõige hea asukoha tõttu Kadriorus – lähedal asuvad nii kesklinn, pargid kui koolid. Samuti kuulub maja juurde 150 ruutmeetri suurune katuseterrass.
Algse planeeringu järgi oli korteris seitse tuba: esimesel tasandil kaks avarat tuba koos köögiga, teisel korrusel magamistoad, pesu- ja saunaruumid. Terve hulk väikeseid tube muutsid korteri aga visuaalselt kitsaks ja ebapraktiliseks. Lisaks tundus uutele omanikele ebaloogiline, et valgusküllane teine korrus on magamistubade ning hämaram, alumine tasand elutoa päralt.
Ruumilahendus
Kliendiga koostöös otsustasime luua täiesti uue ruumilahenduse. Uue ruumilahenduse nuputamine oli paras väljakutse, kuid tegi töö selle võrra huvitavamaks. Projektis oli mitmeid keerulisi sõlmi, mis nõudsid tähelepanu, paljusid detaile kohandasime veel töö käigus. Väljakutse oli suur, kuid koostöö sujus hästi ja pererahvas tuli ideedega hästi kaasa.
Uues põhiplaanis asuvad esimesel korrusel pere privaatsemad ruumid nagu magamistoad, garderoob ja vannitoad. Samale korrusele kavandati ka majapidamisruum, kuhu paigutati helikindla ukse taha pesumasinad, kesktolmuimeja süsteem ja teised tehnilised seadmed. Teisele korrusele liigutasime varem all korrusel olnud elutoa ja köögi.
Värvilahendus, viimistlusmaterjalid, mööbli valik ja paigutus
Peremehe ja perenaise magamistuppa valisime sumedad toonid. Valitud värvide kooskõla jätab stiili puhtajooneliseks ja elegantseks, samas toovad erksamad värvid toale veidi särtsu. Toa juurde kuuluva vannitoa jätsime samuti elegantseks, ent valitud erinevad valguslahendused teevad ruumi hubasemaks.
Vastupidiselt peremehe ja -naise sumedates toonides magamistoale on lastetubadesse toodud lõbusalt särtsakaid värve. Roosade ja kollaste detailidega toad seob kokku kahte rõõmsat värvi kombineeriv laste vannituba.
Avarast esikust tõuseb teisele korrusele trepp, mis planeeriti mitte üksnes praktilise käiguteena, vaid olulise disainelemendina. Laserlõigatud lehemotiividega trepipiire ja seina elavdavad valgusobjektid püüavad pilku ning aitavad trepilahendusel interjööris esile tõusta. Trepi ja selle ilusad detailid valgustab kaunilt välja astmete kohal olev katuseaken.
Teisel korrusel paiknev elutoa ja köögitsoon on korteri süda, kus puhatakse ja lõõgastutakse, toimetatakse koos perega ja võõrustatakse külalisi. Trepp jagab avatud planeeringuga suure ruumi näiliselt pooleks, millest ühele poole jääb köök ja söögilaud, teisele poole lounge-ala. Korterisse oli võimalus ehitada ka kamin, seekord otsustati gaasikamina kasuks. Kamina kõrval oleva kommunikatsiooni šahti ette sai disainitud laeni ulatuv mööbel, mis varjab ka kamina gaasiballooni.
Elutoa naela, suure ookerkollase eritellimus diivani tootis Eesti tootja Mang.
Köögikapide uste viimistluseks on valitud nanotehnoloogi must Fenix laminaat, köögisaare tööpinnaks valge komposiitkivi (Corian). Ruumi on köögis mõnusalt palju ja köögisaare ümber mahuvad appi toitu valmistama ka külalised. Pidulikumatel puhkudel istutakse aga pika söögilaua taha, mille äärde valiti Cattelan Italia nahast polstriga toolid. Suured aknad täidavad kogu ruumi valguse ning helge ja päikeselise õhustikuga.
Kohe köögi kõrvalt avaneb uks spaaruumidesse, millest pääseb omakorda avarale terrassile. Tumedate plaatidega viimistletud koduspaas on nii leili- kui ka aurusaun, dušinurk ning väike istumisala. Seinakappi peidetud külmikust võib haarata näppu külma joogi ja astuda otse õue.
Stiil
Kuna korteris on kõrged laed, õnnestus lagi mitmel pool pisut allapoole tuua, et peita selle taha hubane karniisivalgustus. Peale peidetud valgustuse valisime tubadesse mitmed efektsed valgustid, mis oma moodsa joonega haakuvad siiski suurepäraselt Kadrioru miljööga.
Ajastu joont järgib ka elegantne kalasabaparkett, mis on viimistletud hallikasvalgeks. Rahulikku halli tooni on ka põrandaliistud ja esimese korruse siseuksed. Kogu korteri värviskeem on helge ja moodne, elevust lisavad mõned erksamad seinajupid, dekoratiivvärv magamistoas ja mitmed sisustusdetailid. Korteri sisekujunduse I-täpiks on luksusliku välimusega kardinad, mis said valitud firmast Kaunid Kardinad.
Vaatamata väljapeetud üldmuljele leidub interjööris vahvaid vimpkasid ja julgeid nüansse. Pere tahtis kohati veel uljamaid lahendusi, mõnes kohas pidime nende ideede lennukust isegi tagasi tõmbama. Siin-seal jääb siiski silma mõni põnev ja kelmikas valguslahendus, värvilaik või materjal. Vinti on peale keeratud tualettruumides, mille tooted ja värvipalett ei lase seal igavust tunda. Tualett võiks olla ruum, mille kujundus üllatab ja pakub näiteks külla tulnud sõbrale ohhoo-elamuse.













